Contentor Sanitário 20 Pés Usado (6×2,4m) – Bloco de 6 Chuveiros com Caldeira de 300L e Lavandaria
6 300,00 €
Alta capacidade para grandes fluxos de utilizadores. Este Contentor Sanitário de 6×2,44 metros (Usado em Boas Condições) está configurado como bloco de chuveiros intensivo, oferecendo 6 postos servidos por um potente esquentador de 300 Litros.
Além dos chuveiros, a unidade está completa com instalações sanitárias (sanita e urinol) e uma zona de lavandaria com máquina de lavar roupa incluída. A solução definitiva para parques de campismo, balneários desportivos e grandes estaleiros.
Descrição
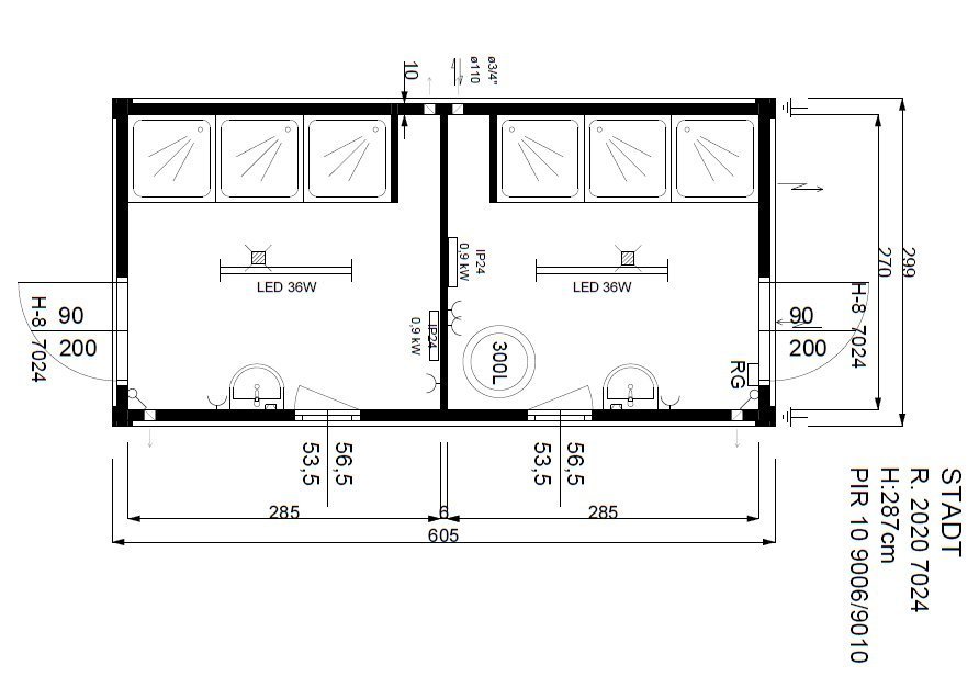
O Contentor Sanitário 3x6m (Usado) da CASA MODULAR é uma central de higiene móvel projetada para gerir um elevado número de acessos diários. A sua configuração interna é otimizada para maximizar a funcionalidade: não apenas uma casa de banho, mas um verdadeiro centro de serviços com 6 chuveiros, zona de lavatório duplo e lavandaria.
Construído sobre uma estrutura metálica robusta, dispõe de um acesso duplo (uma porta no lado curto e uma porta no lado comprido) que facilita o fluxo de pessoas e a ventilação. O coração do módulo é o sistema hidráulico, suportado por uma caldeira industrial de 300 litros que garante água quente suficiente para a utilização simultânea dos chuveiros.
Características Técnicas
- Dimensões Externas: 6.06 m (C) x 2.44 m (P) x 2.80 m (A) [Área 14,79 m²].
- Condição: Usado (Boas condições estruturais e funcionais).
- Zona de Chuveiros: 6 Cabines de chuveiro completas.
- Zona de Serviços: 1 Sanita, 1 Urinol, 2 Lavatórios.
- Zona de Lavandaria: 1 Máquina de lavar roupa incluída.
- Água Quente: Esquentador elétrico de alta capacidade (300 Litros).
- Acessos: 1 Porta no lado curto + 1 Porta no lado comprido (Máxima flexibilidade).
- Caixilharia: 2 Janelas de parede baixa com persianas para ventilação e privacidade.
- Instalações: Elétrica completa (iluminação e tomadas) e hidráulica pré-instalada.
Vantagens para o Cliente
- Autonomia Hídrica Quente: O depósito de 300L é fundamental para evitar duches frios durante os picos de utilização (ex. fim de turno em estaleiro ou após jogos desportivos).
- Completude: Oferece tudo o que é necessário num único módulo: higiene pessoal, instalações sanitárias e lavagem de roupa.
- Entrada Dupla: Permite criar percursos separados (ex. entrada e saída) ou aceder facilmente à zona técnica.
- Robustez: Estrutura metálica pesada adequada para deslocamentos e instalações em ambientes difíceis.
Instalação
O contentor necessita de ligação à rede hídrica (com pressão adequada para 6 chuveiros), à rede de esgotos e à rede elétrica (verificar a potência disponível para a caldeira). Posicionar sobre uma base nivelada.
